Archiwalne: Wysoki standard | M4 | Duża loggia | Wola 73,3 m²

Mazowieckie,Warszawa,Wola,Jana Kazimierza 23B
Liczba pokoi:
4
Piętro:
3 / 6
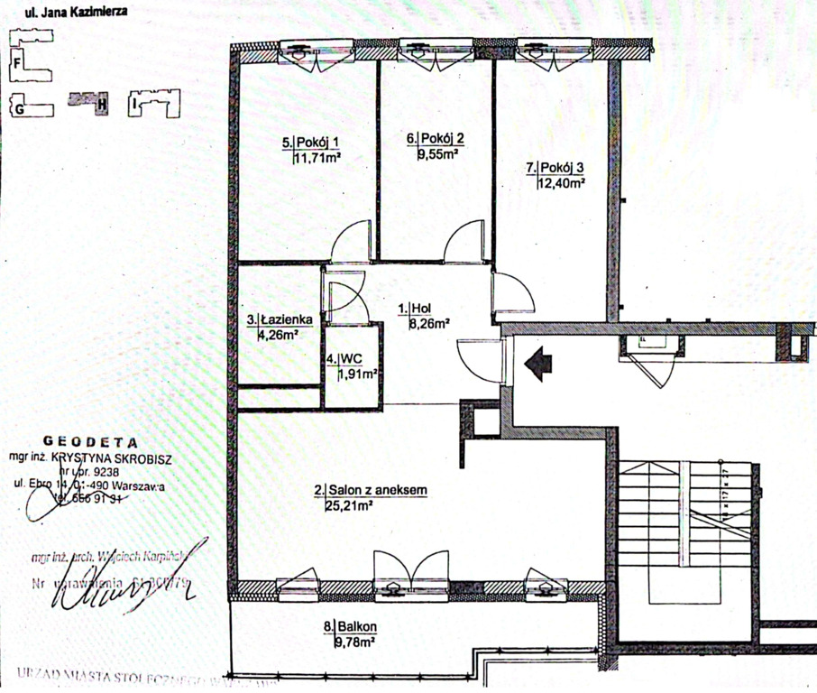
Powierzchnia:
73.3 m2
Rynek:
Wtórny
1550000 PLN
21145.98 PLN/m2

4 pokoje dla rodziny – duża loggia – Wola Jana Kazimierza

Szukasz miejsca, w którym Twoja rodzina będzie mogła wygodnie mieszkać przez wiele lat?
Ta jasna i funkcjonalna przestrzeń 73,3 m² przy ul. Jana Kazimierza została zaprojektowana z myślą o codziennym komforcie domowników.

 ATUTY:

Wyobraź sobie poranki z kawą na loggii i spokojne rodzinne wieczory w jasnym salonie.

4 ustawne pokoje – każdy domownik ma swoją przestrzeń do nauki, pracy i odpoczynku
Dwustronne mieszkanie – naturalne światło przez większą część dnia
Duża loggia – idealne miejsce na relaks, rośliny lub kącik wypoczynkowy
Gotowe do wprowadzenia – mieszkanie wyremontowane i w pełni umeblowane
• Budynek z 2020 roku – nowoczesna inwestycja z zadbanymi częściami wspólnymi
• Miejsce parkingowe w garażu podziemnym – wygoda codziennego parkowania

 NIERUCHOMOŚĆ:

Funkcjonalny układ pozwala wygodnie oddzielić strefę wspólną od prywatnej.

Salon z wyjściem na dużą loggię – przestrzeń na wspólne posiłki i rodzinne spotkania
Sypialnia główna – komfortowa przestrzeń dla rodziców
Dwa dodatkowe pokoje – idealne dla dzieci, na gabinet lub pokój gościnny
Łazienka oraz funkcjonalny przedpokój z miejscem do przechowywania
73,3 m² powierzchni – przemyślany układ pomieszczeń

 Mieszkanie znajduje się na 3 piętrze nowoczesnego budynku przy ul. Jana Kazimierza 23B na warszawskiej Woli.

 STAN PRAWNY:

Pełna własność – możliwość zakupu na kredyt
• Miejsce parkingowe w garażu podziemnym dodatkowo płatne 50 000 zł

 OKOLICA:
Jana Kazimierza to jedna z najbardziej dynamicznie rozwijających się części Woli.

Szkoły i przedszkola – wygodne rozwiązanie dla rodzin z dziećmi
• Sklepy, piekarnie i restauracje – codzienne sprawy załatwisz w kilka minut
Place zabaw i tereny spacerowe – idealne na rodzinne popołudnia
• Dobra komunikacja z centrum Warszawy
Nowoczesna, rozwijająca się okolica z pełną infrastrukturą

 To miejsce łączy miejski styl życia z wygodą i spokojem codziennego funkcjonowania.
Jeśli szukasz mieszkania, które zapewni przestrzeń dla dzieci i komfort dla dorosłych, ta oferta zdecydowanie zasługuje na Twoją uwagę.

 Z przyjemnością pokażę Ci tę nieruchomość i przeprowadzę przez cały proces zakupu.

Zapraszam do kontaktu.
Starszy doradca ds. Nieruchomości
Vadym Chuchmii
=Wiarygodna Sprzedaż Nieruchomości Eteria Consulting=

Informacje dodatkowe
Materiał Ceramika
Stan nieruchomości Do zamieszkania
Winda
Domofon
Monitoring
Ochrona
Garaż

Inne dostępne oferty w tej okolicy

Skorzystaj z bezpłatnego kalkulatora i dowiedz się ile warte jest Twoje mieszkanie