Archiwalne: Komfortowe M3 na Tolkiena 3-Westfield Mokotów

Mazowieckie,Warszawa,Mokotów,J.R.R. Tolkiena 3
Liczba pokoi:
3
Piętro:
2 / 5
Powierzchnia:
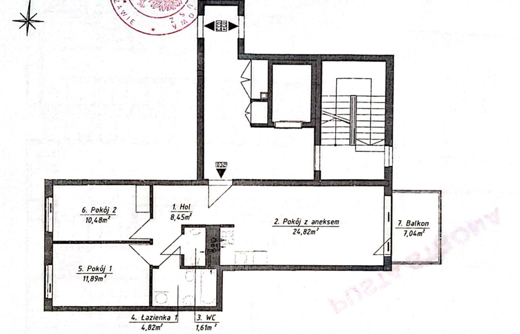
62.07 m2
Rynek:
Wtórny
1480000 PLN
23844.05 PLN/m2

Wyjątkowa przestrzeń dla Twojej rodziny – 3 pokoje, gotowe do wprowadzenia!Wyjątkowe, dwustronne mieszkanie położone na kameralnym, zamkniętym osiedlu przy ul. J.R.R. Tolkiena 3. Idealne miejsce dla osób, które cenią komfort, spokój i nowoczesny styl życia w doskonałej lokalizacji Mokotowa.

Wyobraź sobie 25-metrowy salon z wschodnią ekspozycją, w którym poranne słońce subtelnie oświetla każdy detal wnętrza. Przestrzeń ta płynnie łączy się z 7-metrowym balkonem – idealnym miejscem na poranną kawę lub wieczorny relaks z widokiem na ciche, zielone patio osiedla.

Dwie przestronne sypialnie z zachodnią ekspozycją tworzą prywatną strefę wypoczynku, gdzie można odpocząć po dniu pełnym wrażeń i podziwiać widok na zachód słońca.

ATUTY:

  • 62,07 m² – funkcjonalny układ z wieloma możliwościami aranżacyjnymi.
  • Łazienka oraz osobne WC – wygoda na co dzień.
  • Garderoba / szafa wnękowa – dodatkowa przestrzeń do przechowywania.
  • Dwustronna ekspozycja (wschód–zachód) – mieszkanie pełne naturalnego światła.
  • Zamknięte, prestiżowe osiedle z całodobową ochroną i monitoringiem.

STAN TECHNICZNY:
Mieszkanie w bardzo dobrym stanie technicznym, w pełni umeblowane, zadbane i gotowe do wprowadzenia.

DODATKOWE INFORMACJE:
Do mieszkania przynależy miejsce postojowe w garażu podziemnym  50 000 zł razem z zabudowaną komórką lokatorską. 

STAN PRAWNY: 
Mieszkanie stanowi pełną własność z założoną księgą wieczystą, co oznacza dla Ciebie:

Bezpieczeństwo transakcji – jasny, uregulowany stan prawny, brak ukrytych współwłaścicieli czy roszczeń.
Możliwość zakupu na kredyt – nieruchomość spełnia wszystkie wymagania bankowe, dzięki czemu bez przeszkód możesz sfinansować zakup z pomocą kredytu hipotecznego.

LOKALIZACJA:
Ulica J.R.R. Tolkiena 3 to część nowoczesnej, spokojnej i doskonale skomunikowanej części Mokotowa. Budynek z 2016 roku stanowi część kameralnego osiedla o nowoczesnej architekturze i wysokim standardzie wykonania.

Doskonały dojazd do centrum, na Mokotów Biznesowy i Lotnisko Chopina czyni tę lokalizację wyjątkowo praktyczną zarówno dla rodzin, jak i osób pracujących w biznesowej części Warszawy.

Ciekawostki i klimat miejsca: 

1) Nazwa ulicy J.R.R. Tolkiena nie jest przypadkowa – to jedna z nielicznych ulic w Polsce nazwana na cześć autora Władcy Pierścieni, co dodaje tej lokalizacji wyjątkowego, symbolicznego charakteru
2) Zabudowa w tym rejonie powstawała etapami po 2010 roku, dlatego osiedle zachowuje spójny, nowoczesny charakter – z niską, elegancką architekturą i dużą ilością zieleni między budynkami.

OTOCZENIE: 
Harmonia między ciszą osiedla a energią miasta – idealna przestrzeń do codziennego życia i relaksu. 

Zapraszam do kontaktu! To może być Twoje nowe M3! 

Z przyjemnością przedstawię szczegóły i pomogę w przeprowadzeniu transakcji krok po kroku.

Starszy doradca ds. Nieruchomości
Vadym Chuchmii
=Wiarygodna Sprzedaż Nieruchomości Eteria Consulting=

Vadym Chuchmii

Doradca ds. Nieruchomości
Kontakt
Informacje dodatkowe
Materiał Betonowe
Stan nieruchomości Do zamieszkania
Winda
Domofon
Monitoring
Ochrona
Garaż

Inne dostępne oferty w tej okolicy

Skorzystaj z bezpłatnego kalkulatora i dowiedz się ile warte jest Twoje mieszkanie