Archiwalne: Przestrzeń, cisza i wybór-30' Warszawa-"pod klucz"

Mazowieckie,Kamionka,ul. Marii Konopnickiej
Liczba pokoi:
7
Powierzchnia:
295 m2
Rynek:
Wtórny
1037000 PLN
3515.25 PLN/m2

Poszukujesz miejsca, które zachwyci Cię przeszywającą na wskroś ciszą, a zarazem bliskością Warszawy?
Od dawna śni Ci się przepiękny ogród, który będzie miejscem spotkań rodziny i przyjaciół?
Poszukujesz domu w stanie deweloperskim? A może wykończonego pod klucz?
Tu masz obie te opcje! Wystarczy zaledwie jedna decyzja!

ATUTY:

2 poziomy – strefa dzienna i osobna strefa sypialniana;
Stan obecny, deweloperski lub dom wykończony pod klucz – Ty decydujesz na czym Ci zależy;
-Istnieje możliwość wykończenia domu tak, jak na wizualizacjach
– Zaledwie 30 min z Warszawy;
Cisza! Wspaniała, przejmująca cisza! Tu głowa odpoczywa jak nigdzie indziej!
– Duża działka 1068m2 – Twoja prywatna oaza
– Gotowa altanka ogrodowa – miejsce relaksu po całym dniu pracy
Aż 7 pokoi
– Przestronny salon – tu nie zabraknie miejsca dla nikogo
Ogrzewanie podłogowe w całym domu!
Podłączenia pod klimatyzację, fotowoltaikę
Podświetlane i murowane ogrodzenie
– Wjazd wyłożony kostką brukową
– Miejsce na 4-stanowiskowy garaż!
Automatyczna brama wjazdowa
Alarm i monitoring!!!
– Możliwość ZAMIANY!

DOM:

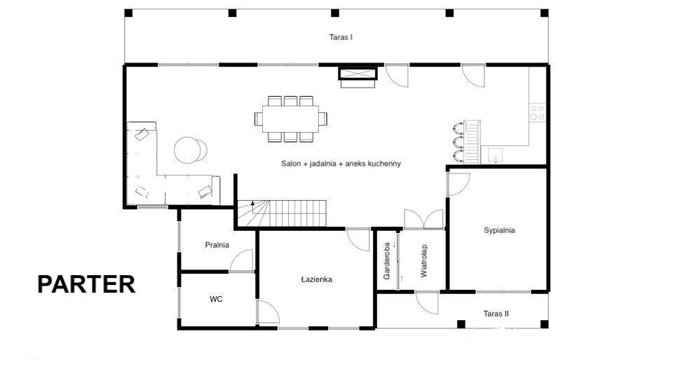
1 poziom:
– Salon z kominkiem, otwartą kuchnią i jadalnią, a z nich wyjście na taras i ogród
– Biuro / sypialnia gościnna 
– Duża łazienka z osobną pralnią / spiżarnią
– Osobne WC

2 poziom:
– 5 pokoi 
– Łazienka Kotłownia

Dodatkowo:

Możliwość przebicia się z jednego pokoju na poddasze i zrobienie 2-poziomowego pokoju!!!
Ewentualnie – zagospodarowanie poddasza na siłownię, pokój telewizyjny lub inny pokój – masz tu pole do własnej aranżacji.

WYMIARY:

PARTER (122,87 m2): 
– salon z kuchnią (75,56 m2),
– biuro (13,91 m2),
– garderoba (1,60 m2),
– łazienka z pralnią (25,15 m2),
– wiatrołap (3,00 m2).

– taras 1 – 42,60 m2,
– taras 2 – 9,90 m2

PIĘTRO (167,70 m2): 

– pokój (30,97 m2),
– pokój 2 (20,65 m2),
– pokoju 3 (33,94 m2),
– pokoju 4 (19,37 m2),
– pokoju 5 (27,43 m2),
– łazienka (10,46 m2),
– korytarz (18,38 m2), 
– kotłownia (6,5m2).

Dodatkowo poddasze ok. 70 m2 !!!

OKNA: drewniane, Velux, 3-szybowe

Dach: blacha
Ocieplenie dachu: pianka PUR

DZIAŁKA I LOKALIZACJA:

Przepiękna, CICHA, zielona działka o wymiarach 1068m2 w Kamionce, Gmina Radziejowice.
Zaledwie 5 km od Mszczonowa
30 min od Warszawy!

Do działki doprowadzone media – gaz, woda, prąd i szambo

PODSUMOWANIE:

Ten piękny, kompletny, otulony cisza i przyrodą dom to dokładnie to, czego szukasz!
Dodaj do tego możliwość wykończenia pod klucz, a nie będziesz szukał kompromisów!
Nie daj się ubiec innym! Zadzwoń już dziś!

Joanna Bartman
Doradca ds. Nieruchomości
= Wiarygodna sprzedaż nieruchomości Eteria Consulting =

Joanna Bartman

Doradca ds. Nieruchomości
Kontakt
Informacje dodatkowe
Materiał Pustak
Alarm
Domofon
Monitoring
Powierzchnie tarasów

Inne dostępne oferty w tej okolicy

Skorzystaj z bezpłatnego kalkulatora i dowiedz się ile warte jest Twoje mieszkanie