Archiwalne: PL. HALLERA-METRO-ŚWIEŻO PO REMONCIE-ZOO

Mazowieckie,Warszawa,Praga-Północ,ul. Dąbrowszczaków
Liczba pokoi:
2
Piętro:
3 / 6
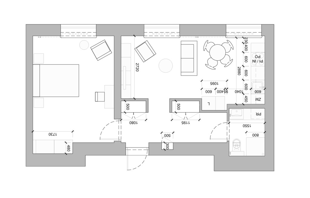
Powierzchnia:
45.5 m2
Rynek:
Wtórny
3500 PLN
76.92 PLN/m2

Jeśli szukasz miejsca z klimatem, gdzie nowoczesny standard łączy się z duszą warszawskiej Pragi – to mieszkanie przy ul. Dąbrowszczaków jest właśnie dla Ciebie. To idealna propozycja dla pary, singla lub młodej rodziny, którzy cenią sobie spokój, bliskość natury i świetną komunikację z centrum miasta.

Mieszkanie o powierzchni 45,5 m² przeszło gruntowny remont i jest gotowe, aby stać się Twoim nowym domem – bez żadnych nakładów finansowych, w pełni wyposażone i pachnące świeżością.

ATUTY:

  • Świeżo po remoncie – wysoki standard wykończenia, nowoczesny design i funkcjonalność.
  • Solidna kamienica z lat 50. – grube mury zapewniają ciszę oraz doskonały mikroklimat (ciepło zimą, chłodno latem).
  • Idealne do pracy zdalnej wyjątkowo duża sypialnia z wyodrębnioną częścią biurową
  • W pełni wyposażone – meble i sprzęty AGD są do Twojej dyspozycji.
  • Lokalizacja Premium – zaledwie kilka minut spacerem do Parku Praskiego i ZOO.
  • Wysokie sufity – dodają wnętrzu przestrzeni.

MIESZKANIE:
Przestrzeń została zaprojektowana w sposób przemyślany, dzieląc mieszkanie na strefę dzienną i prywatną:

  • Salon z aneksem kuchennym – jasne serce domu, idealne do wspólnego gotowania i relaksu. Kuchnia w nowoczesnej zabudowie, wyposażona w niezbędne sprzęty.
  • Oddzielny pokój – sypialnia, która gwarantuje intymność i spokój, z dużą szafą, biurkiem i wygodnym łóżkiem.
  • Stylowa łazienka – zapewniająca komfort codziennego użytkowania.
  • Trzecie piętro – optymalna wysokość w 6-piętrowym budynku, zapewniająca dobre doświetlenie wnętrz.

LOKALIZACJA – ul. Dąbrowszczaków:
To jeden z najbardziej urokliwych zakątków Pragi Północ, który w ostatnich latach stał się symbolem miejskiego stylu życia.

  • Komunikacja: Tuż obok Plac Hallera z licznymi liniami autobusowymi (m.in. 162, 166, 170). Kilka minut do Metra Dworzec Wileński oraz przystanków tramwajowych.
  • Rekreacja: Spacerem dojdziesz do ZOO, Parku Praskiego oraz nad Wisłę, gdzie czekają miejskie plaże i ścieżki rowerowe.
  • Infrastruktura: W bezpośrednim sąsiedztwie znajdziesz tężnię solankową na Placu Hallera, klimatyczne kawiarnie (np. Cztery Pokoje), restauracje, sklepy (Biedronka, Żabka) oraz punkty usługowe i medyczne.

WARUNKI NAJMU:

  • Czynsz najmu: 3900 zł / miesiąc
  • Czynsz administracyjny:  589 zł + zużycie 
  • Kaucja: 4500 zł (czynsz + opłaty)
  • Forma umowy: najem okazjonalny
  • Zwierzęta: mieszkanie dla osób bez zwierząt
  • Dostępność: od zaraz

Zamieszkaj tam, gdzie bije serce starej i nowej Pragi. To mieszkanie to nie tylko cztery ściany – to styl życia w jednej z najbardziej pożądanych lokalizacji Warszawy. Zapraszam na prezentację!

Kamil Słoń
Doradca ds. Nieruchomości
= Wiarygodny Wynajem Nieruchomości Eteria Consulting =

Informacje dodatkowe
Materiał Cegła
Stan nieruchomości Idealny
Winda
Domofon
Monitoring
Garaż

Inne dostępne oferty w tej okolicy

Skorzystaj z bezpłatnego kalkulatora i dowiedz się ile warte jest Twoje mieszkanie