Archiwalne: Możliwość podziału-Świetna inwestycja-Metro

Mazowieckie,Warszawa,Bemowo,ul. Powstańców Śląskich
Liczba pokoi:
10
Powierzchnia:
970 m2
4950000 PLN
5103.09 PLN/m2

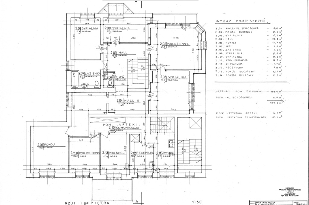
Oferuję do sprzedaży budynek mieszkalno- handlowo- usługowy o powierzchni użytkowej 970 m2 zlokalizowanej na działce o powierzchni 964 m2. Aktualnie część budynku jest wykorzystywana na cele mieszkaniowe. Z powodzeniem można ją zaaranżować na inne cele usługowe lub handlowe. Pozostałe części budynku pozostają nieużywane. Ponadto dla nieruchomości sporządzono operat szacunkowy w październiku 2022 r. Wartość nieruchomości została oszacowana na 6 686 000 zł. 

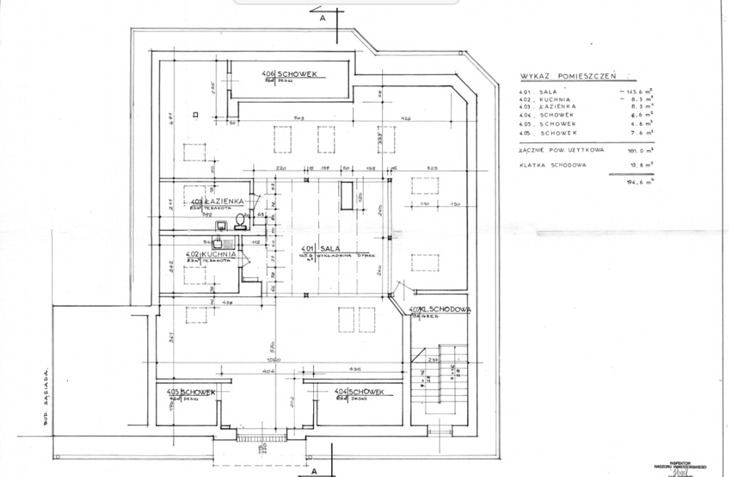
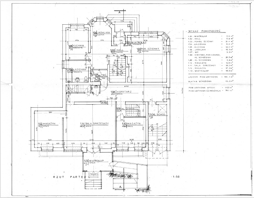
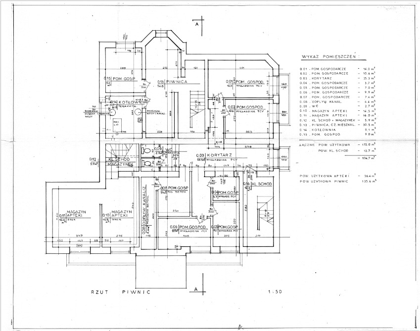
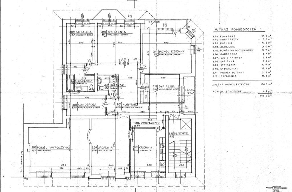
Główny budynek posiada 5 kondygnacji (w tym 1 kondygnacja podziemna posiadająca dostęp do światła dziennego) oraz został oddany do użytku w 1992 rokuOd początku budynek spełniał funkcję mieszkalną oraz handlowo- usługową. W nieruchomości działała apteka oraz biura. W 2019 roku został doprowadzony światłowód oraz zamontowano instalację fotowoltaiczną. Konstrukcja budynku pozwala na elastyczne rozplanowanie przestrzeni zgodnie z potrzebami nowego właściciela.
W bliskiej okolicy nieruchomości dominuje zabudowa jednorodzinna, wielorodzinna oraz komercyjna.

Dane na temat konstrukcji budynku:

  •  budynek posadowiony na fundamencie betonowym
  •  ściany piwnic z cegły pełnej ocieplone styropianem
  •   ściany zewnętrzne parteru o pięter wykonane z pustaków ceramicznych warstwowe z wypełnieniem styropianowym
  •  ściany wewnętrzne nośne z cegły pełnej, ścianki działowe z cegły dziurawki pokryte tynkiem cementowym
  •  dach wielospadowy, więźba dachowa drewniana krokwiowo płatwiowa, pokrycie dachowe blacha powlekana na deskowaniu szczelnym
  •  kominy murowane z cegły
  •  posadzki betonowe, stropy prefabrykowane gęstożebrowe Terriva, balkony wspornikowe żelbetowe, schody żelbetowe wylewane
  •  stolarka okienna PCV, drzwi wiatrołapu aluminiowe, 

DOJAZD I MEDIA:
Do budynku prowadzi główna droga asfaltowa. Podjazd został utwardzony kostką brukową. Działka na planie prostokąta jest w pełni ogrodzona i uzbrojona. 

  • wodociąg- miejski
  • kanalizacja- miejska
  • energia elektryczna
  • gaz
  • internet światłowodowy

 Powierzchnia zabudowy to 265 m2. Działka pozostawia do dyspozycji około 700 m2 terenu, który można przeznaczyć np. na parking. 

LOKALIZACJA:
W bliskiej okolicy nieruchomości dominuje zabudowa jednorodzinna, wielorodzinna oraz komercyjna. Biorąc pod uwagę gęste zaludnienie okolica potrzebuje budynków przeznaczonych pod działalność usługową.

  • Lokalizacja wyróżnia się bardzo dobrym dostępem do komunikacji miejskiej.
  • Bezpośrednio przy budynku znajdują się przystanki autobusowy oraz tramwajowy.
  • Dojazd do metra to tylko 3 przystanki tramwajowe i zajmuje około 7 minut. 
  • Lokalizacja charakteryzuje się dużą intensywnością ruchu.

Budynek świetnie sprawdzi się jako siedziba firmy, powierzchnia pod wynajem biur, gabinety medyczne, żłobek, przedszkole lub szkoła. Istnieje możliwość podziału budynku na kilka mieszkań. 

Zapraszam po więcej szczegółów i umówienie się na prezentację!

Paweł Wiśniewski
Doradca ds. Nieruchomości
= Wiarygodna Sprzedaż Nieruchomości Eteria Consulting =

Informacje dodatkowe
Materiał Pustak
Domofon
Garaż

Inne dostępne oferty w tej okolicy

Skorzystaj z bezpłatnego kalkulatora i dowiedz się ile warte jest Twoje mieszkanie