Archiwalne: Klimat przedwojennej Warszawy – kamienica z duszą
Wyobraź sobie, że budzisz się w miejscu, gdzie historia spotyka się z rytmem miasta. Kamienica, w której zachowano przedwojenną duszę, a jednocześnie zapewniono komfort codziennego życia. Mieszkanie przy ul. Wolskiej to przestrzeń dla tych, którzy cenią autentyczność, świetną lokalizację i kameralny klimat starej Warszawy.
Idealna propozycja dla inwestora, singla lub pary szukającej klimatycznego mieszkania w centrum miasta.
ADRES: ul. Wolska 82, Warszawa – Wola
ATUTY NIERUCHOMOŚCI:
- Kamienica z historią – unikatowa architektura, solidne mury, przedwojenny klimat
- Oryginalna dębowa klepka – po renowacji, w doskonałym stanie, dodaje wnętrzu szlachetności i charakteru
- Pierwsze piętro – najchętniej wybierane w tego typu zabudowie, łączy wygodę i dostępność
- Stan do wykończenia – przestrzeń do stworzenia mieszkania dokładnie według własnego pomysłu
- Piwnica w cenie
- Kameralne sąsiedztwo i zamykane podwórko
- Fantastyczna komunikacja – tramwaj i autobus tuż pod kamienicą, 450 m do metra Płocka
- Centrum miasta w zasięgu 10 minut metrem
STAN PRAWNY: Pełna własność – możliwy zakup na kredyt
MIESZKANIE:
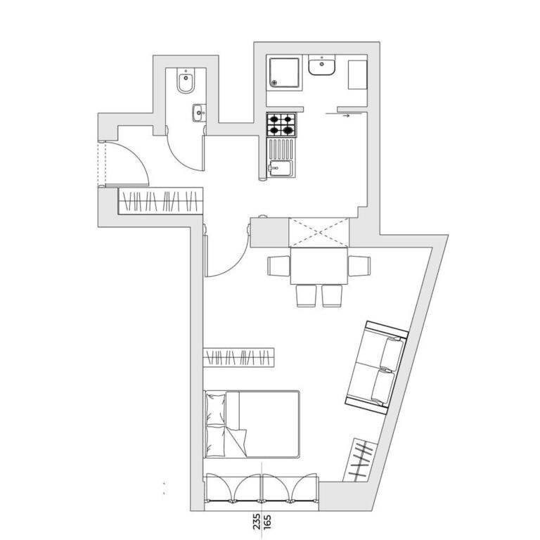
- 32,44 m² – optymalny metraż dla singla, pary lub inwestora
- Kuchnia i łazienka do własnej aranżacji – pozwalają dopasować wnętrze do stylu życia
- Ekspozycja południowo-zachodnia – naturalne światło i ciepły klimat wnętrza
- Wysokie sufity charakterystyczne dla kamienic – poczucie przestrzeni i elegancji
BUDYNEK:
Kamienica z 1925 roku położona w sercu Woli, wśród zieleni i miejskiej zabudowy. Zachowana przedwojenna fasada i solidne mury gwarantują niepowtarzalny klimat. Niska zabudowa i pierwsze piętro zapewniają komfort codziennego użytkowania.
Miejsca postojowe na podwórku (wjazd przez bramę na pilota). Możliwość parkowania w strefie dzięki abonamentowi mieszkańca ZDM.
OKOLICA:
- Piekarnia Grzybki i Żabka w tym samym budynku
- Auchan – 2 min spacerem
- Biedronka – 7 min spacerem
- Siłownia – 1 min spacerem
- Centrum miasta – 10 min metrem
- Park Edwarda Szymańskiego – 10 min spacerem
Nie zwlekaj! Ta lokalizacja jest bardzo wyjątkowa.
Otwórz drzwi do miejsca z charakterem – umów się na prezentację.
Kamil Słoń
Doradca ds. Nieruchomości
= Wiarygodna Sprzedaż Nieruchomości Eteria Consulting =