Archiwalne: 117m2 w cenie 75! Dwupoziomowe, nowy świat designu
Są mieszkania, w których dzieci po prostu mają pokój. A są takie, w których mają swoją przygodę.
Tu poddasze staje się prawdziwą bazą: pokój LEGO na budowanie świata po swojemu
i pokój książkowy, gdzie można się wyciszyć, poczytać, poukładać myśli.
To przestrzeń, która naturalnie wspiera rodzinę — bez ścisku, bez kompromisów.
ATUTY
- 5 pokoi – idealne dla rodziny
- Dwupoziomowe
- Dwustronne – naturalny podział stref + dużo światła
- 2 łazienki + osobne WC – realny komfort codzienności
- Poddasze z charakterem: pokój LEGO + pokój książkowy
- Stan do odświeżenia – urządzasz po swojemu i pod potrzeby swojej rodziny
MIESZKANIE
To 75 m² zaprojektowane tak, by rodzina miała wygodę i oddech: na dole wspólne życie, na górze spokój, zabawa i nauka.
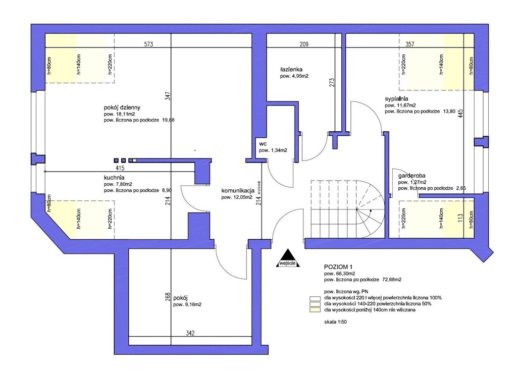
Poziom 1
- Salon z kuchnią
- 2 pokoje
- Korytarz
- Osobne WC
- Łazienka
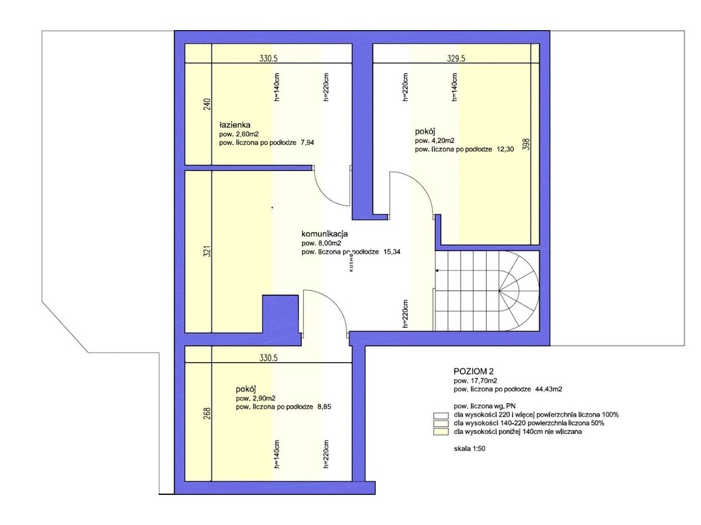
Poziom 2
- 2 pokoje (idealnie jako dziecięce królestwa / gabinet / hobby)
- Łazienka
- Tajemny pokój – idealne miejsce dla dzieci 😉
LOKALIZACJA
Ul. Cypryjska 4 – Mokotów (Stegny)
To część Mokotowa lubiana przez rodziny: spokojniej, bardziej zielono, a jednocześnie wygodnie do codziennych spraw.
Zieleń i odpoczynek
- Park Dolinka Służewska – stawy, dużo zieleni, a w parku działa też Służewski Dom Kultury
- Jeziorko Czerniakowskie– przyrodnicza enklawa na Mokotowie, idealna na dłuższy spacer i weekendowy reset.
- Sadyba Best Mall – 2 km
- Przystanek autobusowy- 300 m
PODSUMOWANIE
To miejsce czeka na Waszą codzienność: na poranki w salonie,
na dziecięce budowle z klocków na poddaszu i na wieczory,kiedy dom w końcu cichnie.
Napisz lub zadzwoń — pokażę Ci mieszkanie, w którym łatwo pomyśleć: to może być nasze
Joanna Bartman
Doradca ds. Nieruchomości
= Wiarygodna Sprzedaż Nieruchomości Eteria Consulting =